universal immobilien

wohnen

 

Was wollen Sie mehr für Ihre Familie ?

Tolles Reiheneckhaus mit vielen Extras in 

Weil am Rhein - Friedlingen

595.000,00
Maklergebühr 3,57 % ( = 3% zuzüglich 19 % Mwst. )

Reiheneckhaus für die große Familie

Wohnfläche: 123,85 m2
Nutzfläche: 44.47 m2
Grundstück: 249 m2
Baujahr: 1987

Zimmer: 5
Garagen: 1
Stellplätze: 2
Ort: 79576 Weil am Rhein
 
Referenznummer: 09072025

 

Objektbeschreibung

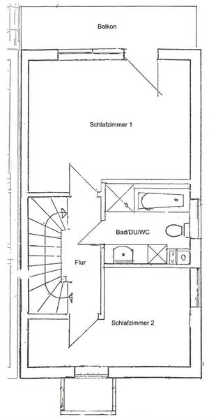
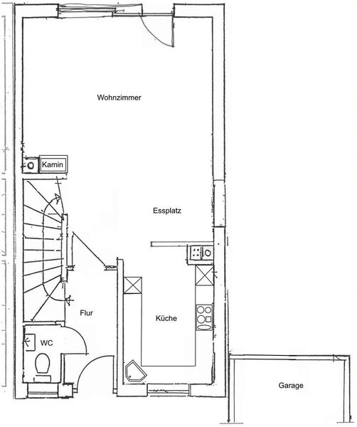
Dieses mit Proton in massiver Bauweise gebaute Einfamilienhaus befindet sich in ruhiger und kinderfreundlicher Wohnlage. Es handelt sich um ein voll unterkellertes 2 1/2 - geschossiges Gebäude mit ausgebautem Dachgeschoß und präsentiert sich in einem  gepflegten Zustand mit großzügiger Ausstattung. Neben einem großzügigen Wohn- und Essbereich, verfügt die Immobilie über 4 weitere großzügig geschnittene Räume, einen Hobbyraum mit Sauna, eine überdachte Terrasse und zwei Balkone. Das Untergeschoß bietet außer einem Vorratsraum noch den Raum für die Gas - Zentralheizung mit Anschluß für Waschmaschine und Trockner.

 

Ausstattung

Die Böden sind in Fliesen und Laminat gehalten. Neben dem Gäste - WC finden Sie jeweils ein herrliches Badezimmer im Obergeschoß sowie ein Duschbad im Dachgeschoß, beide mit Tageslicht. Im Hobbyraum ist als Ergänzung zur dort eingerichteten Hausbar & Sauna eine weitere Dusche mit WC installiert. Die Sanitärausstattung ist neu- und hochwertig und lässt keine Wünsche offen. Im Wohnzimmer finden Sie einen sehr ansprechenden anheimelnden offenen Kamin. Die zum Wohnzimmer hin offene Küche ist sehr hochwertig und mit vielen Extras ausgestattet, auch hier werden keine Wünsche offen gelassen. Die Terrasse ist nach Süden ausgerichtet und der angeschlossene Garten ist hübsch bepflanzt und mit einem gemauerten Grill versehen. Eine große Garage sowie 2-3 PKW - Abstellplätze befinden sich auf der Eingangsseite des Hauses.

 

Lage

Die Lage im Ortsteil Friedlingen von 79576 Weil am Rhein ist ruhig und sonnig. Fußläufig erreichen Sie bequem die Trambahn nach Basel und in die Innenstadt von Weil am Rhein. Kindergarten, Schule und Sporteinrichtungen befinden sich in unmittelbarer Nähe, auch der sich im entstehen befindliche " Rheinpark " ist unweit zu erreichen. Die Grenzlage zur Schweiz und Frankreich sowie große Einkaufszentren in der nahen Umgebung erhöhen die Attraktivität dieser Immobilie.

 

Weitere Informationen

Vereinbaren Sie einen Termin und lassen Sie sich bei einer Innenbesichtigung von diesem attraktiven Objekt überzeugen!

Käuferprovision: 3,570% vom Kaufpreis

Frei ab: nach Absprache

Mehr anzeigen >>


Reiheneckhaus für die große Familie

595.000,00Maklergebühr 3,57 % ( = 3% zuzüglich 19 % Mwst. )
Wohnfläche: 123,85 m2
Nutzfläche: 44.47 m2
Grundstück: 249 m2
Baujahr: 1987

Zimmer: 5
Garagen: 1
Stellplätze: 2
Ort: 79576 Weil am Rhein
 
Referenznummer: 09072025

 

Objektbeschreibung

Dieses mit Proton in massiver Bauweise gebaute Einfamilienhaus befindet sich in ruhiger und kinderfreundlicher Wohnlage. Es handelt sich um ein voll unterkellertes 2 1/2 - geschossiges Gebäude mit ausgebautem Dachgeschoß und präsentiert sich in einem  gepflegten Zustand mit großzügiger Ausstattung. Neben einem großzügigen Wohn- und Essbereich, verfügt die Immobilie über 4 weitere großzügig geschnittene Räume, einen Hobbyraum mit Sauna, eine überdachte Terrasse und zwei Balkone. Das Untergeschoß bietet außer einem Vorratsraum noch den Raum für die Gas - Zentralheizung mit Anschluß für Waschmaschine und Trockner.

 

Ausstattung

Die Böden sind in Fliesen und Laminat gehalten. Neben dem Gäste - WC finden Sie jeweils ein herrliches Badezimmer im Obergeschoß sowie ein Duschbad im Dachgeschoß, beide mit Tageslicht. Im Hobbyraum ist als Ergänzung zur dort eingerichteten Hausbar & Sauna eine weitere Dusche mit WC installiert. Die Sanitärausstattung ist neu- und hochwertig und lässt keine Wünsche offen. Im Wohnzimmer finden Sie einen sehr ansprechenden anheimelnden offenen Kamin. Die zum Wohnzimmer hin offene Küche ist sehr hochwertig und mit vielen Extras ausgestattet, auch hier werden keine Wünsche offen gelassen. Die Terrasse ist nach Süden ausgerichtet und der angeschlossene Garten ist hübsch bepflanzt und mit einem gemauerten Grill versehen. Eine große Garage sowie 2-3 PKW - Abstellplätze befinden sich auf der Eingangsseite des Hauses.

 

Lage

Die Lage im Ortsteil Friedlingen von 79576 Weil am Rhein ist ruhig und sonnig. Fußläufig erreichen Sie bequem die Trambahn nach Basel und in die Innenstadt von Weil am Rhein. Kindergarten, Schule und Sporteinrichtungen befinden sich in unmittelbarer Nähe, auch der sich im entstehen befindliche " Rheinpark " ist unweit zu erreichen. Die Grenzlage zur Schweiz und Frankreich sowie große Einkaufszentren in der nahen Umgebung erhöhen die Attraktivität dieser Immobilie.

 

Weitere Informationen

Vereinbaren Sie einen Termin und lassen Sie sich bei einer Innenbesichtigung von diesem attraktiven Objekt überzeugen!

Käuferprovision: 3,570% vom Kaufpreis

Frei ab: nach Absprache


Mehr anzeigen >>


Grundriß und Schnitt -- klicken Sie auf ein Bild

Ihre Formularnachricht wurde erfolgreich versendet.
Sie haben folgende Daten eingegeben:

Kontaktformular

Bitte korrigieren Sie Ihre Eingaben in den folgenden Feldern:
Beim Versenden des Formulars ist ein Fehler aufgetreten. Bitte versuchen Sie es später noch einmal.

Hinweis: Felder, die mit * bezeichnet sind, sind Pflichtfelder.

 

 

Besten Dank für Ihre Anfrage, wir werden uns schnellstens mit Ihnen in Verbindung setzen.

 

 

>zurück<

universal immobilien

wohnen

Doppelhaus - Villa in 79576 Weil am Rein - Haltingen

seltene Gelegenheit

in Kürze                       >mehr<

VERKAUFT

 

Luxus - Garage

in 79576 Weil am Rhein - Altweil

Hinterdorfstr. 

NEU

Luxuriöses Wohnhaus mit Einliegerwohnung in

79576 Weil am Rhein - Friedlingen

demnächst                 >mehr<

3 Zi.- Eigentumswohnung 

ganz oben

in 79576 Weil am Rhein

                                 > mehr <

VERKAUFT

Im Herzen in der Stadt

sofort beziehbar

                                        >mehr<

RESERVIERT

Traum - Penthouse mitten in der Stadt

79576 Weil am Rhein

Innenaufnahmen auf Wunsch anfordern unter info@universal-immo.com

                                   >mehr<

universal

 immobilien

space to survive

universal immobilien

D-79576 Weil am Rhein

Hinterdorfstr. 24/1

 

Festnetz +49(0) 7621 706388

mobil +49(0)176-78128276

mobil +49(0)172-7683467

Berlin +49(0)30 - 9203833794

info@universal-immo.com

 

Impressum

QR Code für´s smartphone

500.000

      &

Druckversion | Sitemap
© universal immobilien


Anrufen

E-Mail

Anfahrt